Huollot
Vuosittainen määräaikaishuolto (katso huoltoliikkeet täältä) pitää jätevesipumppaamon luotettavassa toimintakunnossa. Pumppaamon toimilaitteiden, kuten pinnan korkeuden säätimen kunto (puhtaus) on hyvä tarkistaa muutaman kuukauden välein. .
Ohje jätevesiverkoston käyttäjille
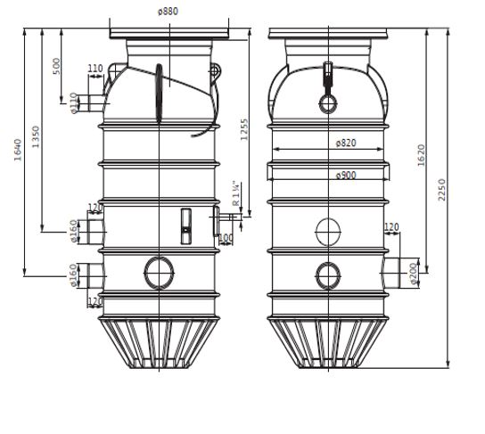
Jätevesipumppaamon pumpun murskain on rakennettu vain WC-paperin silppuamista varten. Esineet ja muu WC-paperia kovempi aine vioittavat tai tukkivat murskaimen. Pumppaamolla on valmistajan antama kahden vuoden takuu valmistevikoja varten. Virheellisestä käytöstä aiheutuneesta viasta vastaa jo takuuaikanakin pumppaamon omistaja. Jätevesipumppaamo on tarkoitettu WC:n huuhtelu- ja talousvesien johtamiseen. Sinne voi johtaa ainoastaan:
- Siivousvedet
- Astian- ja pyykinpesuvesiä
- Peseytymisessä käytettyjä vesiä
- WC:n huuhteluvedet ja pyyhepaperin
Muut taloudessa kertyvät jätteet on toimitettava niille tarkoitettuihin keräilypisteisiin. Esimerkkejä aineista, joita ei saa laskea viemäriin:
- Bensiini, tärpätti, liuottimet, öljyt, maalit, liimat, emäkset ja hapot
- Kahvinporot, hiekka, kissanhiekka, kukkamulta
- Paperipyyhkeet, sanomalehdet,
- Hammasharjat, muovipussit ja lääkkeet
- Ruoantähteet, perunan- ja hedelmänkuoret ja siemenet, rasvat
- Pumpulipuikot, pikkuhousunsuojat terveyssiteet, vaipat ja kondomit
Esitetyllä tavalla käytettävä viemäriverkosto toimii luotettavasti.
Vapaa-ajan asunnoille suositellaan viemäriputken huuhtelua talvikauden ajaksi. Putken Ø 40 mm tilavuus on 8 l/10 m ja Ø 63 mm putkella 25 l/10 m.
Nautakarjatilojen karjakeittiön pesuvedet voidaan johtaa jätevesiviemäriin, mutta ne tulisi suodattaa (rasvan poisto ja hiekan erotus) ennen jätevesipumppaamoa.
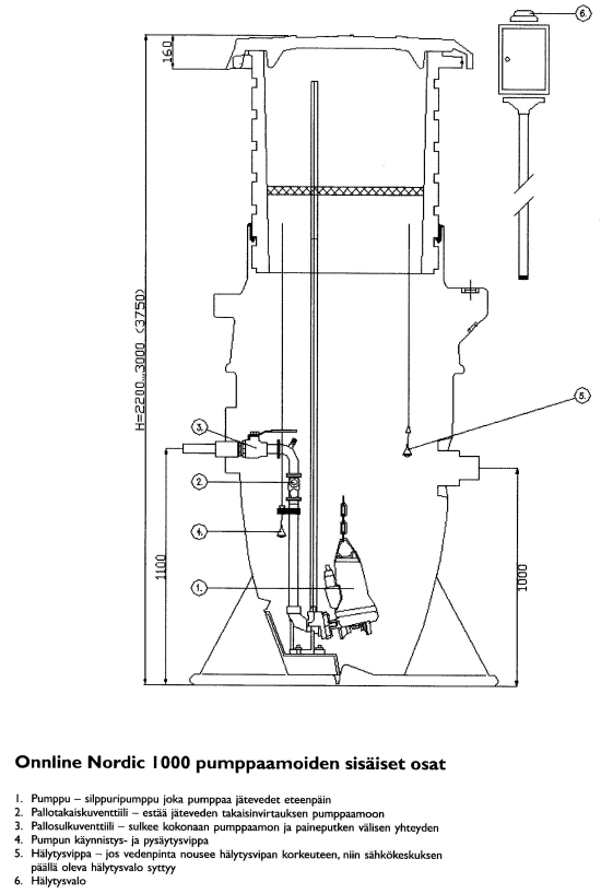
Hyvin hoidetut huollot pitävät jätevesipumppaamon
luotettavassa toimintakunnossa. Pumppaamon toimilaitteiden,
kuten pinnan korkeuden säätimien kunto (puhtaus) on hyvä
tarkistaa muutaman kuukauden välein, vähintään kerran
vuodessa. Pumppaamon määräaikaishuolto tulee suorittaa
toimittajan/laitteen valmistajan ohjeiden mukaisesti.
Huoltoliikkeitä löytyy linkeistä.
Vikatilanteessa (punainen hälytysvalo palaa)
yhteydenotto numeroon 045 695 2919

